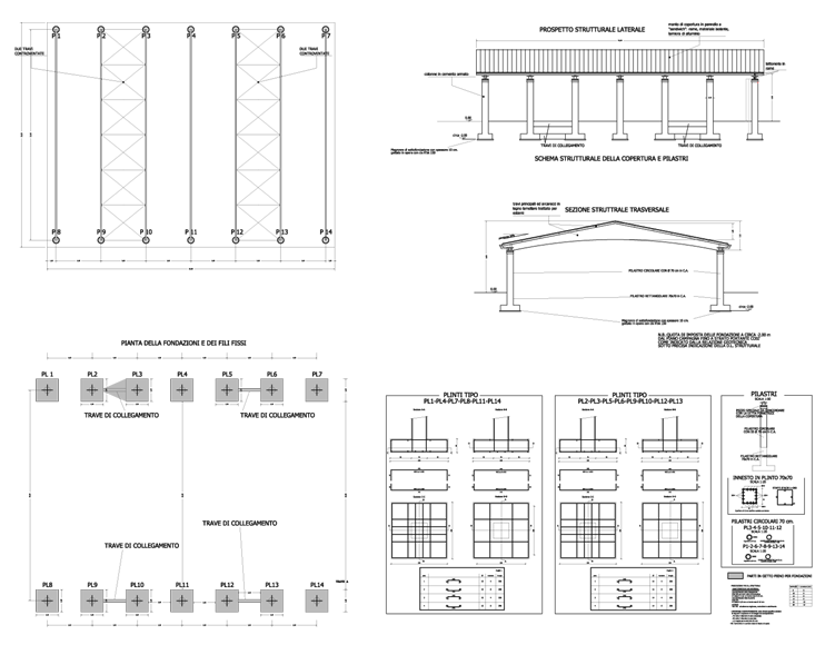
Dalla progettazione alla realizzazione
Una selezione di progetti e interventi che rappresentano l’esperienza, la competenza e l’attenzione ai dettagli dello studio. Ogni immagine racconta un percorso professionale fatto di soluzioni tecniche affidabili, rispetto delle normative e qualità esecutiva.